物件詳細情報
| 交通 |
JR横須賀線 / 武蔵小杉駅 徒歩9分 |
| その他交通 |
東急東横線 / 武蔵小杉駅 徒歩14分 JR南武線 / 武蔵小杉駅 徒歩15分
|
| 所在地 |
神奈川県川崎市中原区中丸子 |
| 物件種目 |
貸マンション |
| 賃料 |
8.3万円 |
管理費等 |
12,000円 |
| 敷金 / 保証金 |
1ヶ月/なし |
礼金 |
1ヶ月 |
| 敷引 |
- |
保証金償却 |
- |
| その他一時金 |
退去時エアコンクリーニング:14,300円、 除菌消臭:8,800円、 退去時ハウスクリーニング:44,000円 |
保険等 |
加入要 / 2年間 20,000円 |
| 維持費等 |
FAST ASSIST24:1,100円/月 |
| 建物名・部屋番号 |
ハーモニーレジデンス武蔵小杉#002 114 |
| 設備 |
モニタ付オートロック 宅配BOX バス・トイレ別室 室内洗濯機置場 クローゼット オートロック ディンプルキー ダブルロックドア 防犯カメラ 2口コンロ エレベーター2基以上 エレベーター 浴室乾燥機 洗濯機置場 エアコン バルコニー 温水洗浄便座 トイレ |
| 備考 |
賃貸保証等:加入要 初回契約時:60、①年間保証料10,000円 ②年間保証料10,000円 口振手数料216円(税込)/月 ③クレジットカ ード払い 月額保証料1.6% バルコニー:あり 写真はイメージです(床やクロスの色が変更となる可能性があります) ※365日以内の解約の場合、短期解約違約金 賃料(管理費込)1ヶ月分 ※民泊利用禁止 ※ペット飼育不可 ※インターネットについては建物管理会社にお問い合わせください ※図面は反転タイプです ※先行申込物件 写真はイメージです(床やクロスの色が変更となる可能性があります) ※365日以内の解約の場合、短期解約違約金 賃料(管理費込)1ヶ月分 ※民泊利用禁止 ※ペット飼育不可 ※インターネットについては建物管理会社にお問い合わせください ※図面は反転タイプです ※先行申込物件
|
| エネルギー消費性能 |
- |
断熱性能 |
- |
| 目安光熱費 |
- |
|
|
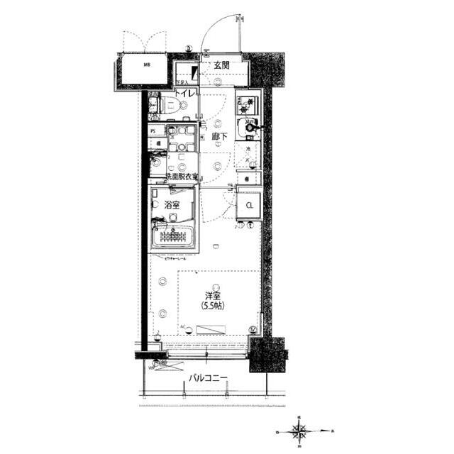
| 間取り |
1K(洋室5.5) |
主要採光面 |
東 |
| 専有面積 |
20.23㎡ |
階建/階 |
7階建/1階 |
| 築年月 |
2018年1月(築8年4ヶ月) |
建物構造 |
RC |
| 総戸数 |
260戸 |
|
|
| 駐車場 |
- |
バイク置き場 |
なし |
| 駐輪場 |
なし |
ペット |
- |
| 契約期間 |
2年 |
現況 |
空家 |
| 条件等 |
- |
入居可能時期 |
相談 |
| 更新料 |
新賃料 1ヶ月 |
|
|
| 物件番号 |
1131962320 |
|
|
| 情報公開日 |
2026/01/30 |
次回更新予定日 |
2026/04/17 |
※「-」と表示されている項目については、情報提供会社にご確認ください。
情報提供会社
(株)ムービングエステート 武蔵小杉店
- 交通:
- 東急東横線/武蔵小杉 徒歩2分
- 住所:
- 神奈川県川崎市中原区新丸子東2丁目926-5 エムスタⅠ 1F
- TEL:
- 044-422-2269
- FAX:
- 044-422-4766
- 所属団体など:
| (公社)全日本不動産協会会員 |
| (公社)首都圏不動産公正取引協議会加盟 |
- 取引態様:
- 仲介
- 免許番号:
- 神奈川県知事免許(7)第21067号
メールでお問い合わせ